Structural Drawing Services - Glorious Builders
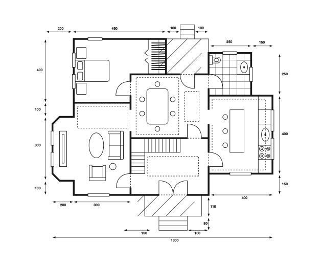
We treat each project individually ensuring that our attention details will ensure you love your home for many years to come. We can provide structural engineering consultants to carry out the calculations to design and specify the structural elements from foundations to the roof of a building, ensuring the construction process is practical and cost-effective and meets the relevant standards/regulations while ensuring the building’s stability and safety. Our range of capabilities allows us the freedom to provide diverse structural design services, leverage innovative products, and materials, and include our clients’ visions to improve each project we touch.
Whether the structure design services are residential, commercial, non-profit, or otherwise, at our center, we are a services-oriented company, dedicated to adding value to the built environment.
After all, a building is not only a structure. It must exist in a community and better the experience of those who use it – and those who will only profit from its environmental impact.
Importance Of Extravagant Structural Service
Glorious Builders is the best construction company in Lahore providing structural design service and ensuring all our builds get the time and attention to detail they deserve. Glorious Builders structural design service constantly pushes the boundaries to meet the high expectations of our clients. Our skill makes it possible for architects to realize their aesthetic visions, and for our clients to touch their commercial and operational goals. With Glorious Builders structural engineering consultants as your build partner, you will be safe in the knowledge your self-build experience will be a relaxed and cost-effective one without compromising on quality. There are many construction companies in Pakistan but having Glorious Builders as your construction company means any construction headaches are avoided through using our trusted craft and tradespeople and clear communication overall stakeholders and team members.
